Burrows Mews

2 Bedrooms, 2 Bathrooms £850,000
SOLD 
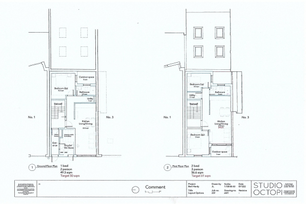
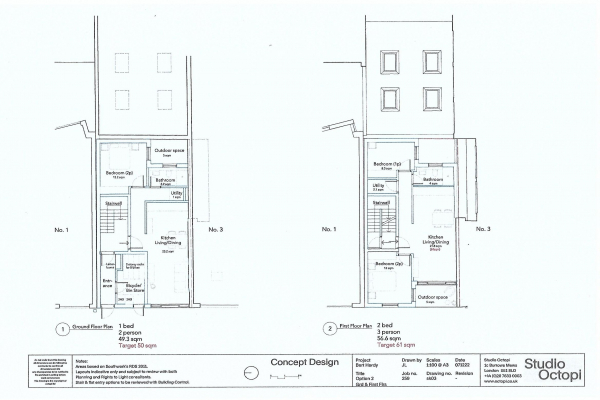
This 2 storey mews house has been converted into two flats has redevelopment potential. The flats are presently let to tenants on AST agreements collectively paying a total of £46,020 rent per annnum (5.4% yield).
Burrows Mews runs parallel  to Blackfriars Road, 1 minute from Southwark station and 4 minutes from Waterloo, giving easy access to the City, Canaray Wharf and the West End. London Blackfriars (Thames Link), is a 5 minute walk. Shops, bars, restaurants and theatres are found on The Cut, making this most central location hughly popular with professionals needing to live in the city centre.

This is the last remaining building 2 storey building on Burrows Mews which has not been redeveloped to 3 and 4 storey buildings, which consist largely of residential accommodation.

Enclosed are existing plans and proposed plans.

Viewing by appointment. Sole Agents. 


Sole Agent
 
Council Tax: Band C
Contract Type: Freehold
Price: £850,000 (Subject to Contract)