Burrows Mews

£850,000
SOLD
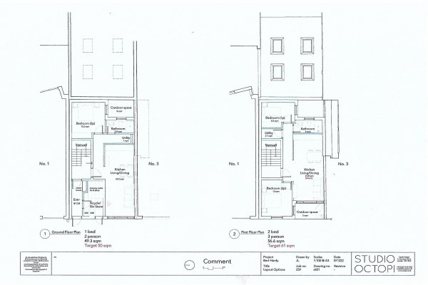
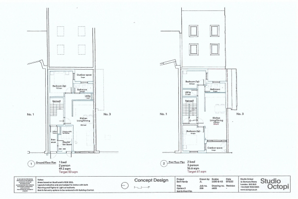
A two storey Mews house (Freehold), divided into two, one bedroom flats on the ground and 1st floors, has redevelopment potential. The exisitng tenants (AST agreements), collectively pay a total of £46,020 rent per annum (5.4% yield).  

Burrows Mews runs parallel to Blackfriars Road, 1 minute from Southwark station and 4 minutes from Waterloo giving easy access to the City, West End and Canary Wharf. London Blackfriars station (Thames Link),  is a 5 minute walk. Shops, bars restaurants and supermarkets are found on The Cut, a well known street for its theatres making this location hugely popular with professionals needing to live in the city centre.

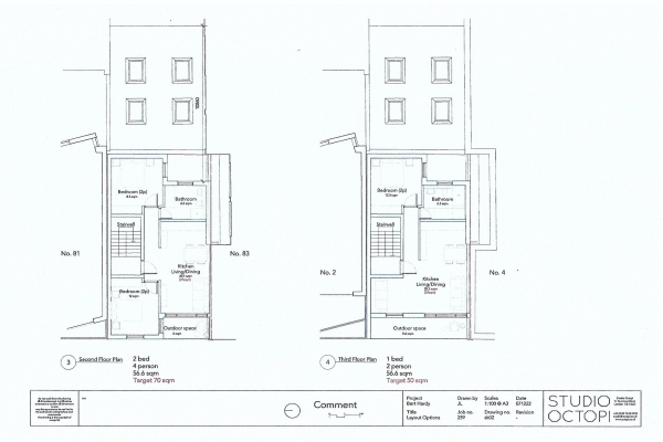
2 Burrows Mews is the last remaining 2 storey building, since all the rest of the Mews houses have been redeveloped into new 3 and 4 storey buildings, mostly with residential usage.

Existing plans and proposed plans are included for guidance purposes only.


Sole Agent
 
Contract Type: Freehold
Price: £850,000 (Subject to Contract)